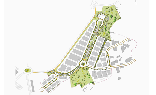
Pólo 5 da Cidade Empresarial


| Paços de Ferreira |  
Dono de Obra > PFR Invest - Sociedade de Gestão Urbana E.M.
Projeto concluído
A proposta para esta zona industrial visa a diminuição dos impactes paisagísticos decorrentes da modelação do terreno necessária à implantação das plataformas para os lotes e demais infra-estruturas do pólo, bem como a criação de uma imagem urbana arrojada, comum aos restantes sete pólos previstos para a Cidade Empresarial do concelho de Paços de Ferreira.
Para além das especificidades de natureza biofísica (topografia muito acidentada), pretendeu-se dar resposta à necessidade de compatibilizar o projecto com as várias condicionantes legais que impendem sobre a área de intervenção.

NOTICIAS

Ver todas as Noticias